1610 NE 235th Ave, Troutdale, OR 97060
Toggle Navigation
Images
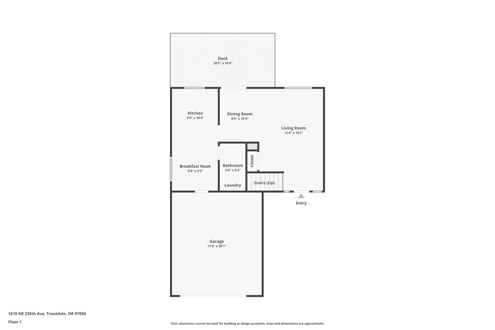
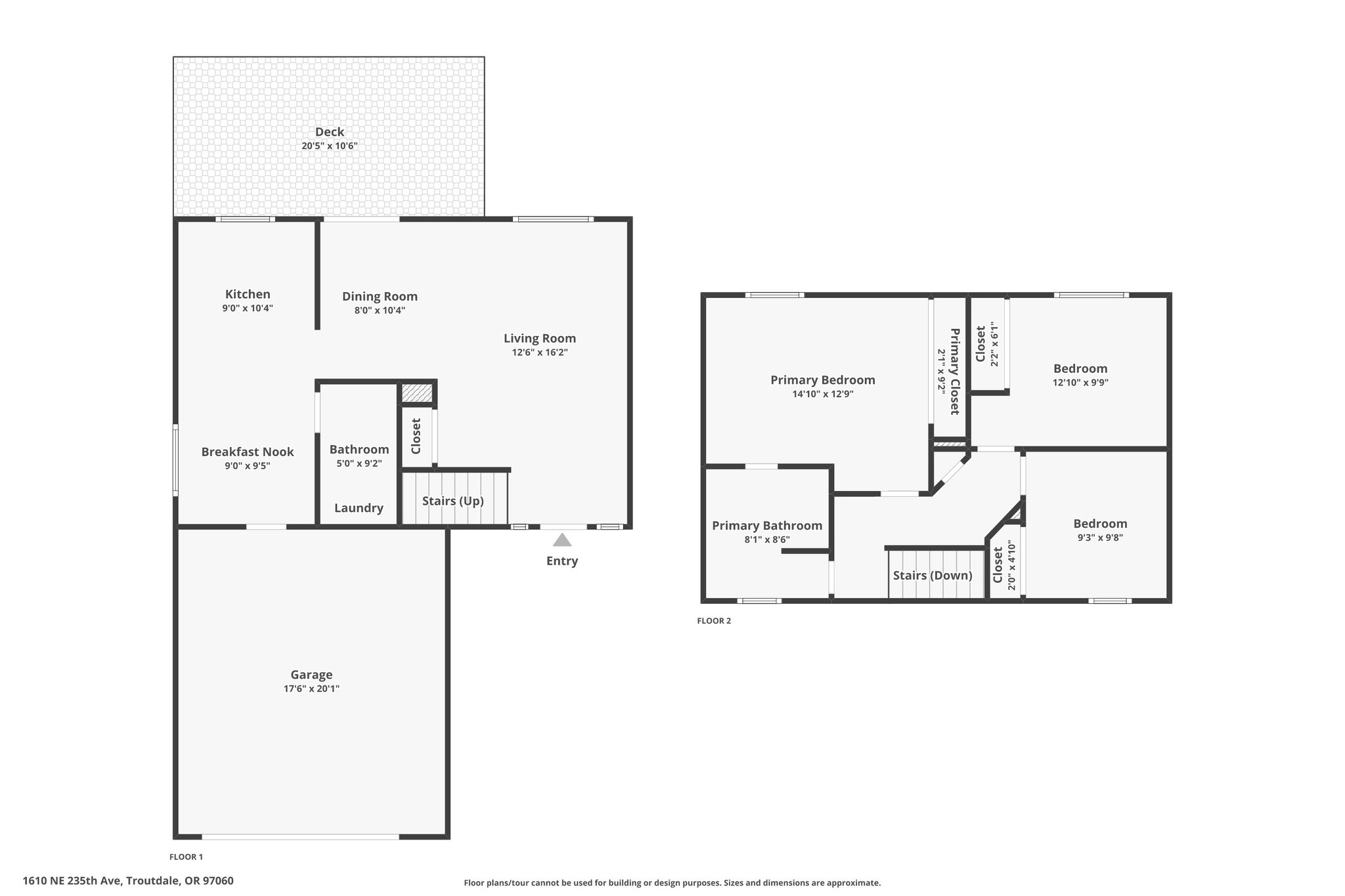
Floor Plans
3D Tour
Map
1610 NE 235th Ave
Troutdale, OR 97060
Scroll to Content
Images
Slideshow
Photo Grid
Hide
Previous
Next
Show more
Floor Plans
Slideshow
Photo Grid
Hide
Previous
Next
3D Tour