52368 NW Strassel Rd, Banks, OR 97106
Toggle Navigation
Images
Videos
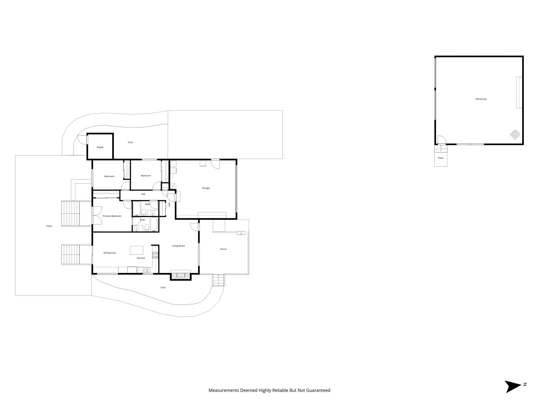
Floor Plans
Map
52368 NW Strassel Rd
Banks, OR 97106
Scroll to Content
Images
Slideshow
Photo Grid
Hide
Previous
Next
Show more
Videos
Floor Plans
Slideshow
Photo Grid
Hide
Previous
Next