13187 NW Burton St, Portland, OR 97229
Toggle Navigation
Images
Videos
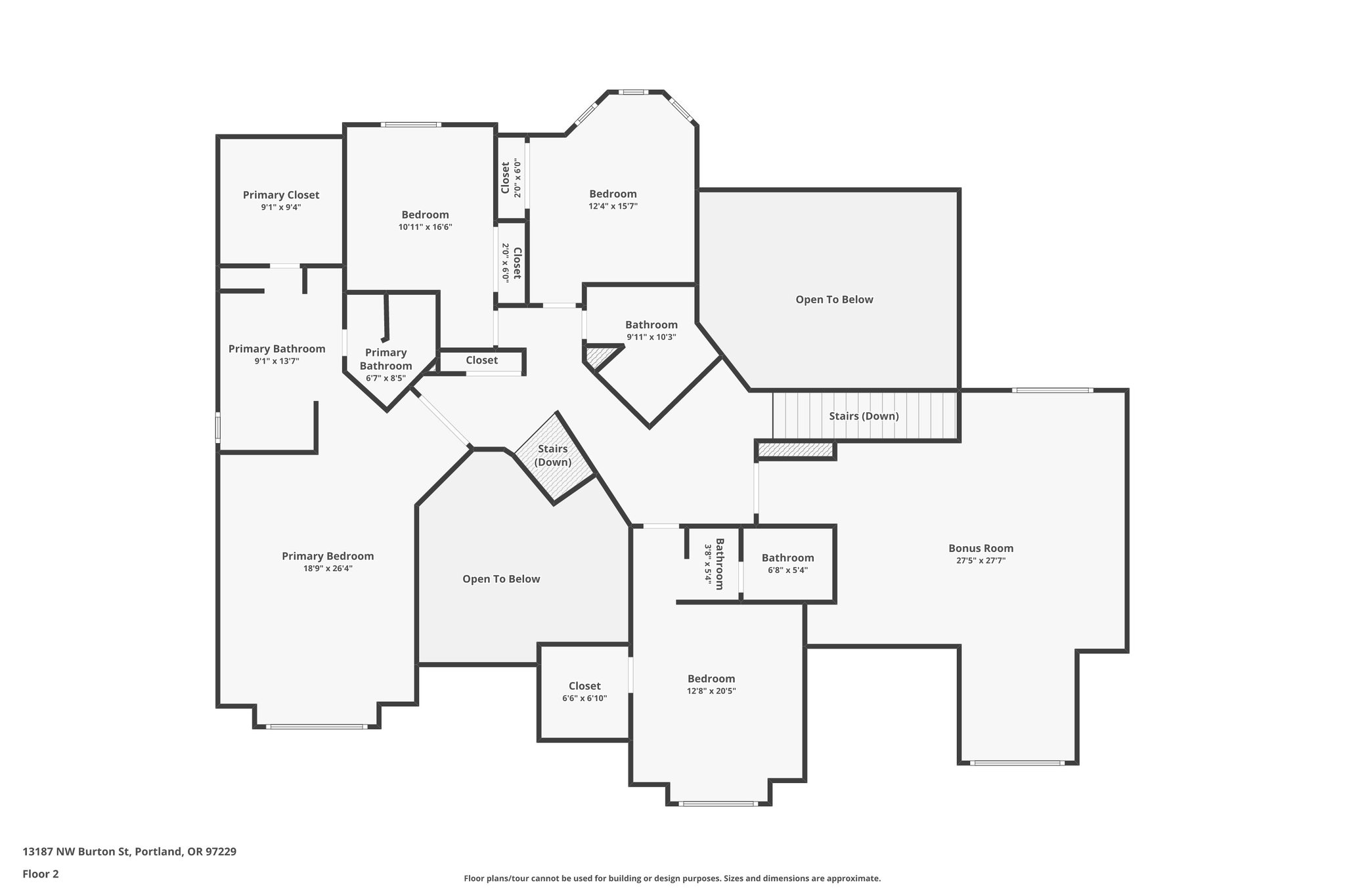
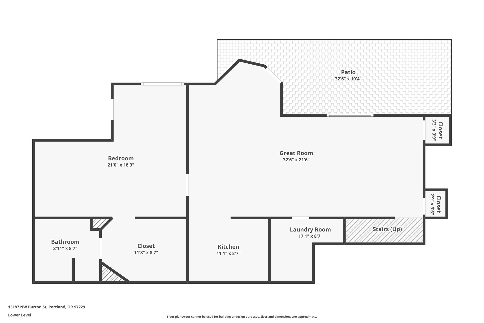
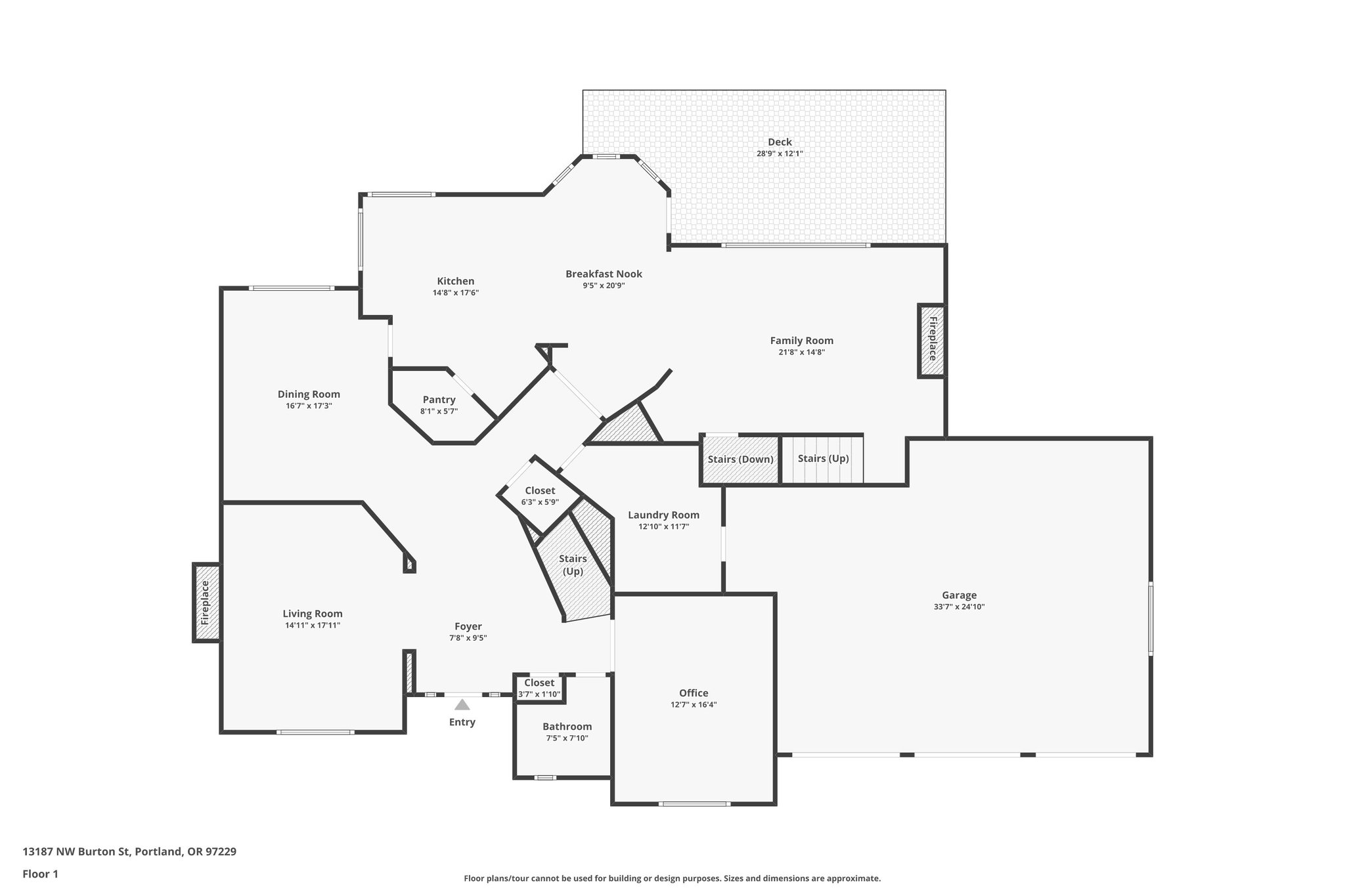
Floor Plans
3D Tour
Map
13187 NW Burton St
Portland, OR 97229
Scroll to Content
Images
Slideshow
Photo Grid
Hide
Previous
Next
Show more
Videos
Content Coming Soon
Floor Plans
Slideshow
Photo Grid
Hide
Previous
Next
3D Tour